New Home @ 651 Brittany Drive ATC-D1

For Sale: $464,900

Gallery - Representative Photos from Model Home

Now under construction, The Jordyn is a stunning luxury duplex new home plan by McNaughton Homes, boasting over 2,400 square feet of living space.

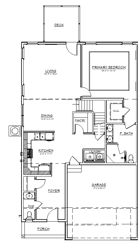
The heart of this home lies in its open-concept living areas and 2-story great room which seamlessly connects the kitchen, dining, and living spaces.

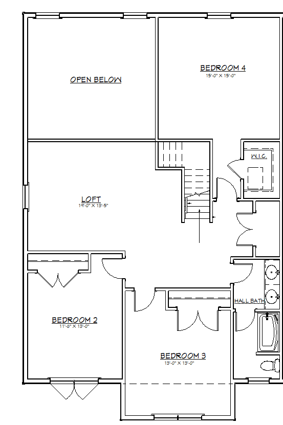
The first floor also features a spacious primary suite for your comfort. Upstairs, discover three bedrooms and a large loft space that could easily be transformed into a fifth bedroom or a versatile living area. Premium appliances and elegant design features elevate this space to the height of sophistication.

With an attached 2-car garage, parking is a breeze, offering both convenience and security.

This is not just a home; it’s a statement of refined living. Seize the opportunity to make this exceptional duplex yours and experience a lifestyle defined by opulence and modernity.

  • Loft
  • Curbless Owner’s Shower

Location

Locality
Mechanicsburg
Township
Upper Allen Township
School District
Mechanicsburg Area SD
Selling Price
$464,900

Specs

Size
2473 SF
Bedrooms
4
Bathrooms
2.5
Garages
2

Home Features

  • 1st-Floor Bedroom
  • 1st-Floor Full Bathroom
  • 1st-Floor Laundry
  • 1st-Floor Owner's Suite
  • 1st-Floor Powder Room
  • 9' 1st-Floor Walls
  • Garage Keyless Entry
  • HVAC Gas
  • Kitchen Pantry
  • Kitchen: 36" Wall Cabinets
  • Kitchen: Ceramic Backsplash
  • Kitchen: Gas Stove
  • Kitchen: Granite Countertops
  • Kitchen: Microwave Vented to Exterior
  • Kitchen: Soft-Close Cabinets
  • LVP Flooring
  • Moen Plumbing Fixtures
  • Owner's Bathroom: 65" x 65" Corner Ceramic Shower
  • Owner's Bathroom: Bench Seat in Shower
  • Owner's Bathroom: Comfort Height Double Bowl Vanity
  • Owner's Bathroom: Comfort Height Water Closet
  • Owner's Bedroom: Tray Ceiling
  • Quiet Belt Garage Door Opener
  • Rear Deck: Pressure Treated
  • Undermount Kitchen Sink
  • Water Line to Fridge

Floor Plans

First Floor

Second Floor

Request Info

Get More Information About ​651 Brittany Drive ATC-D1
Hello, I'm Seth
Quick Move-in URL QR Code