The Nantucket New Home Plan

The Nantucket

Gallery

Description

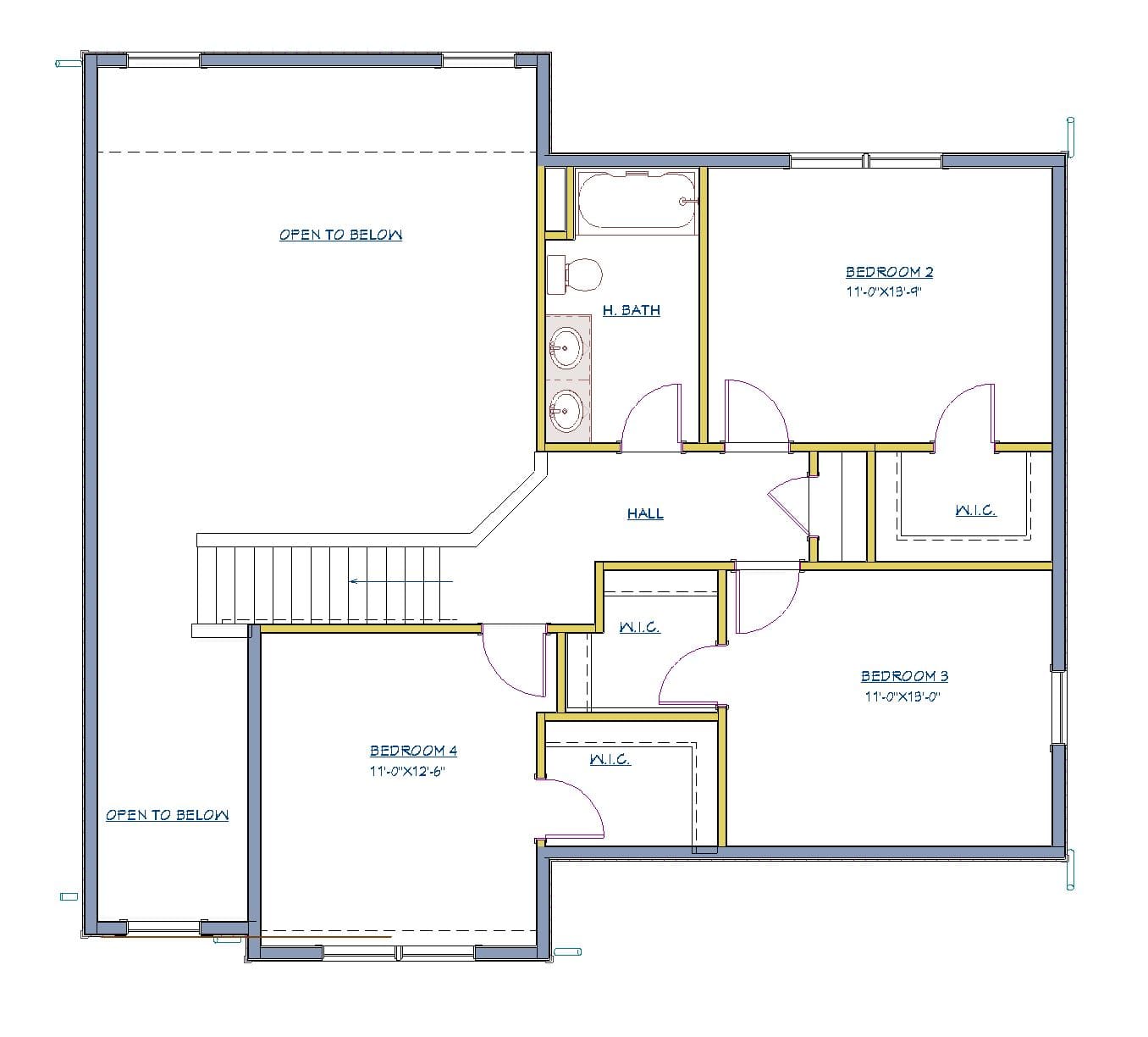
The Nantucket is a 2766 square foot home with a first-floor master bedroom and three additional bedrooms on the second floor all with walk-in closets. 2.5 Bathrooms, 2-car garage, open floor plan and a dramatic 2-story foyer and family room. Formal dining room or office, Kitchen with walk-in pantry, mudroom and first floor laundry.
2,288 SF Floor Space
478 SF Open Space
2766 SF Total

Specs

2766 SF
4
2.5
2
2

Amenities

  • Two-Story Family Room
  • Kitchen Pantry
  • Formal Dining Room
  • First Floor Owner’s Suite
  • Open Plan
  • Kitchen with Island

Request Info

Get More Information About ​The Nantucket

Floorplans

First Floor

  • First Floor

Second Floor

  • Second Floor

Room dimensions may vary. Prices, availability, and specifications may change without notice. This tool is used for strictly illustrative purposes only. Not all options are shown, options may change without prior notice. Please see a sales rep to learn how you can personalize your new home with optional features and upgrades.

Exteriors

Customize the the face of your home. With many elevations to choose from, we're sure you'll find the perfect home.

Elevation A

  • Elevation A

Elevation B

  • Elevation B

Elevation C

  • Elevation C

Options

Some standard options for this model. We aim to please, we're sure we can help you find and build the perfect home.

No Homeplan Options found: 10197