The Quinn New Home Plan

The Quinn

Gallery

Description

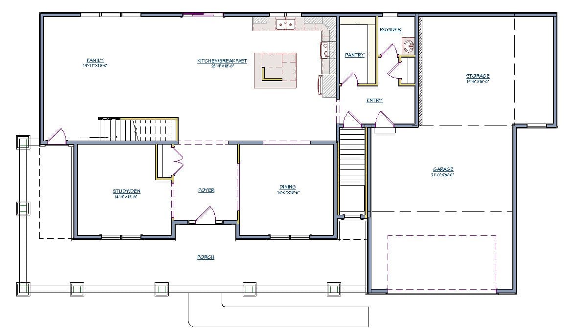
This Quinn new home plan is the newest in the McNaughton family of plans. A center hall two-story home with 3069 sq. ft. of living space. The exterior of the home has a wraparound front porch with stone and wood columns. A wide foyer greets you as you enter the home with a Study/den and dining room flanking either side of the entrance foyer. A 14’x20’ family room adjacent to a 13’x11’ breakfast area and an 11’x 14’ kitchen make this home ideal for entertaining large families or gatherings. Oversized kitchen island makes a great workstation and sitting location. Large walk-in pantry mudroom and powder room round out the first floor living space. The garage has room for 2-cars, bicycles, riding mowers, snowmobiles, motorcycles and extra storage!

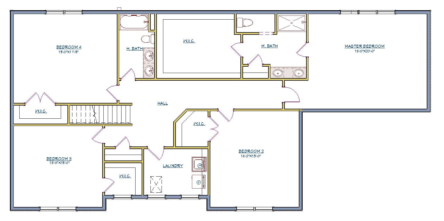
The second floor of the home has 3 large bedrooms with walk-in closets, laundry room, full hall bathroom with double bowl vanity, Master bedroom with sitting area, spacious master bathroom with a double bowl comfort height vanity and two grand walk-in closets.

Specs

3694 SF
4
2.5
2
2

Request Info

Get More Information About ​The Quinn

Floorplans

First Floor

  • First Floor

Second Floor

  • Second Floor

Room dimensions may vary. Prices, availability, and specifications may change without notice. This tool is used for strictly illustrative purposes only. Not all options are shown, options may change without prior notice. Please see a sales rep to learn how you can personalize your new home with optional features and upgrades.

Exteriors

Customize the the face of your home. With many elevations to choose from, we're sure you'll find the perfect home.

Elevation A

  • Elevation A

Options

Some standard options for this model. We aim to please, we're sure we can help you find and build the perfect home.

No Homeplan Options found: 14729