The Parliament New Home Plan

The Parliament

Gallery

Description

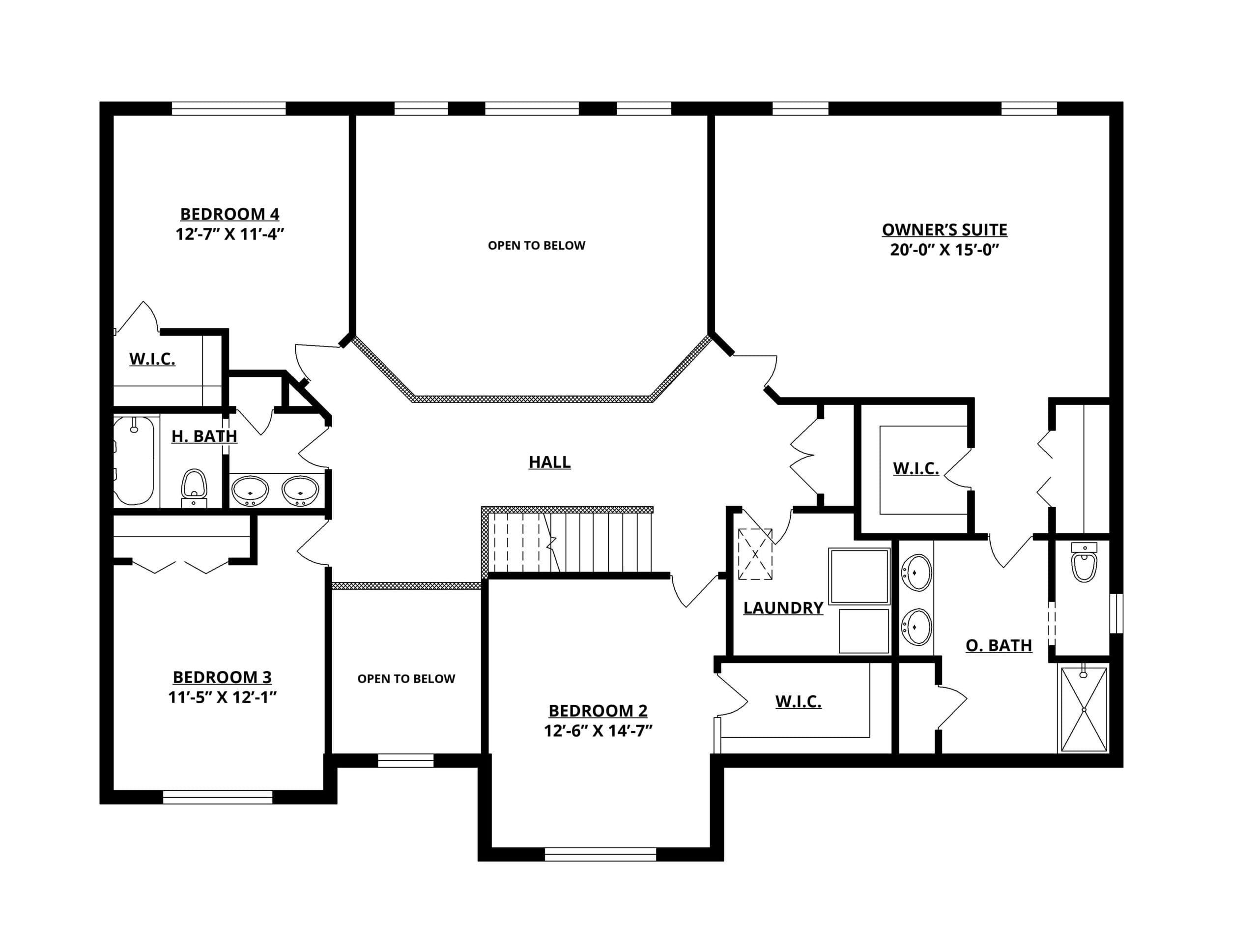
The Parliament new home plan features 4,250 square feet of living space, two story foyer and family room, a luxurious kitchen with island and an open floor plan. A generous owner’s suite, with two walk- closets with a luxurious owner’s bath. 3 additional bedrooms are joined by a cat walk hallway which looks down on the family room below. A second floor laundry room, Full basement and two car garage included as well.
3,349 SF of Floor Space
359 SF of Open Space

Specs

3708 SF
4
2.5
2
2

Amenities

  • Two Story Entrance Foyer
  • Two-Story Family Room
  • Kitchen Pantry
  • Flex Room
  • Formal Dining Room
  • Open Plan
  • Kitchen with Island
  • Second Floor Laundry Room
  • Mudroom/Entry

Request Info

Get More Information About ​The Parliament

Floorplans

First Floor

  • First Floor

Second Floor

  • Second Floor

Room dimensions may vary. Prices, availability, and specifications may change without notice. This tool is used for strictly illustrative purposes only. Not all options are shown, options may change without prior notice. Please see a sales rep to learn how you can personalize your new home with optional features and upgrades.

Exteriors

Customize the the face of your home. With many elevations to choose from, we're sure you'll find the perfect home.

Elevation A

  • Elevation A

Elevation B

  • Elevation B

Elevation C

  • Elevation C

Elevation D

  • Elevation D

Options

Some standard options for this model. We aim to please, we're sure we can help you find and build the perfect home.

No Homeplan Options found: 10207